Osiedle Sportowe w Krzywiniu
Informacje podstawowe
Przedstawiamy Państwu naszą nową inwestycje - budowa Osiedla Sportowego w Krzywiniu. W III etapie wybudujemy 2 budynki w zabudowie bliźniaczej. Pierwszy budynek z dwoma lokalmi, każdy po 98m2, posiadające odpowiednio działkę 270m2 (wewnętrzny) za 479.000 zł oraz skrajny z działką po 285m2, za ceną 479.000 zł. Drugi budynek z dwoma lokalami, każdy po 110m2 z garażem, działkami o powierzchni po 300m2, za cenę 519.000 zł.
Wizualizacje (bez garażu)
Wizualizacje (z garażem)
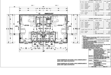
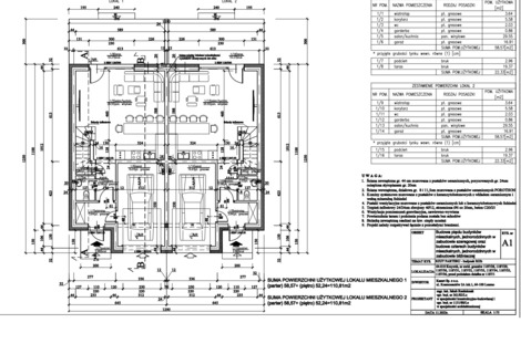
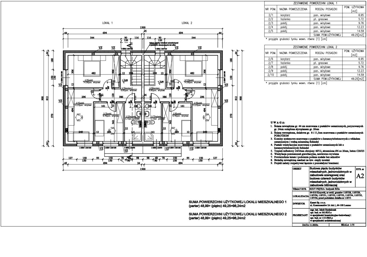
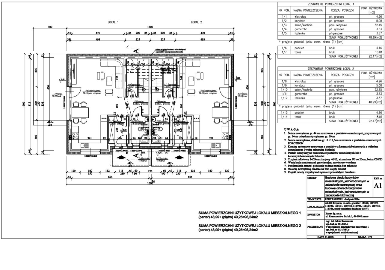
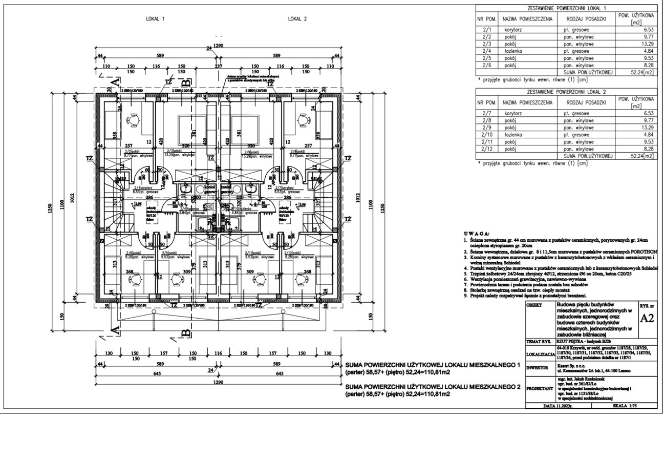
Rzuty (bez garażu)
Rzuty (z garażem)
Prospekt informacyjny
Rezerwacje
Lokale z garażem
| nr lokalu | nr działki | pow. użytkowa [m2] | garaż [m2] | pow. działki [m2] | cena [brutto] | Status |
| Lokal 1 | 1187/36 | 110,81 | 16,91 | 302 | 519 000,00 | |
| Lokal 2 | 1187/36 | 110,81 | 16,91 | 299 | sprzedany |
Lokale bez garażu
| nr lokalu | nr działki | pow. użytkowa [m2] | garaż [m2] | pow. działki [m2] | cena [brutto] | Status |
| Lokal 1 | 1187/35 | 98,24 | - | 270 | 479 000,00 | |
| Lokal 2 | 1187/35 | 98,24 | - | 285 | 479 000,00 |
Standard wykończenia lokali w zabudowie bliźniaczej Os. Sportowe w Krzywiniu:
Budynki mieszkalne w zabudowie bliźniaczej z ogrzewaniem podłogowym oraz funkcjonalnym układem pomieszczeń:
- domki z lokalami mieszkalnymi: parter: wiatrołap, salon z aneksem kuchenny, łazienka, garderoba, korytarz + schody; piętro: 3 pokoje, łazienka, korytarz (pow. 98m2)
- domki z lokalami mieszkalnymi + garaż: parter: wiatrołap, korytarz + schody, wc, garderoba, salon z aneksem kuchennym, garaż; piętro: 4 pokoje, łazienka, korytarz (pow.110m2)
STAN PEŁNY DEWELOPERSKI:
- Ściany budynku z pustaków ceramicznych gr 24 cm (ściana łącząca budynki podwójna z dylatacją)
- Ściany otynkowane, szpachlowane, jednokrotnie malowane, sufity szpachlowane jednokrotnie malowane, ściany w łazienkach bez szpachlowania
- Posadzki betonowe zacieranie mechanicznie + styropian
- Stropy żelbetowe typu filigran
- Przyłącze energetyczne
- Instalacja elektryczna podtynkowa wraz z rozdzielnią elektryczną
- Zamontowane gniazdka i włączniki elektryczne (kolor biały) bez lamp oświetleniowych
- Instalacja C.O. ogrzewanie podłogowe bez grzejników w części parterowej, z grzejnikami na piętrze, piec dwufunkcyjny
- Przyłącze wodno-kanalizacyjne
- Instalacja wod-kan podtynkowa bez urządzeń sanitarnych
- Przyłącze gazowe wraz instalacją wewnętrzną gazową do pieca,
- Elewacja zewnętrzna wraz z tarasem, wejściem oraz podjazdem do budynku z kostki brukowej,
- Stolarka okienna wraz z roletami (okleina biała wewnętrzna, okleina antracytowa zewnętrzna) – okna ścienne 3 szybowe, zgodne z najnowszą normą w zakresie izolacyjności cieplnej,
- Drzwi wejściowe wzmacniane z dwoma wkładkami
- Dach i poddasze - konstrukcja drewniana, dachówka ceramiczna prosta nowoczesna antracytowa, poddasze ocieplone wełną mineralną 25cm, sufit poddasza w systemie STG, szpachlowane
- Ocieplenie budynku – styropian grafitowy 20 cm,
- Ogrodzenie tylnej i bocznej części działki płotem panelowym
- Schody żelbetowe
- Piętro/Poddasze - pełna wysokość bez skosów
- Brama garażowa segmentowa, ocieplana - z napędem elektrycznym (lokale z garażami)
Zakończenie III etapu przewidujemy w III kwartale 2026 (odbiór kluczy)
Kontakt
Sebastian Szpurek
797 945 749
Informacje dodatkowe
- Kupujący zwolniony jest z podatku PCC. Oferujemy pomoc w uzyskaniu kredytu. Zapraszam na prezentację na budowie.
- Niniejsze ogłoszenie jest wyłącznie informacją handlową i nie stanowi oferty w myśl art. 66, § 1. Kodeksu Cywilnego.
- Sprzedający nie odpowiada za ewentualne błędy lub nieaktualność ogłoszenia.
















