Głogów bliźniak/szereg
Informacje podstawowe
Domy w zabudowie szeregowej B3, B8 i B9 z ogrzewaniem podłogowym, napędami elektrycznymi do rolet i do bramy garażowej GRATIS
Pow. użytkowa
- 124,47 m2
Pow. działki około:
- 180 m2
Termin zakończenia budowy 30.04.2027 r.
Prospekt informacyjny
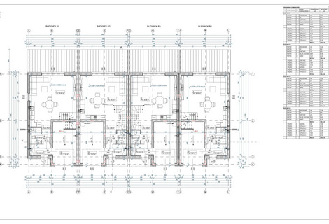
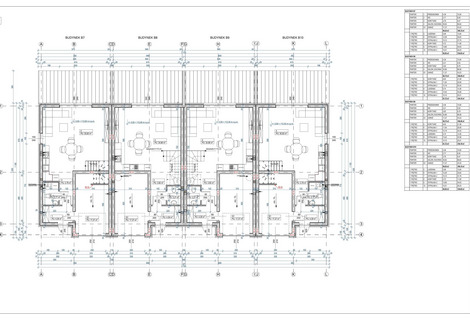
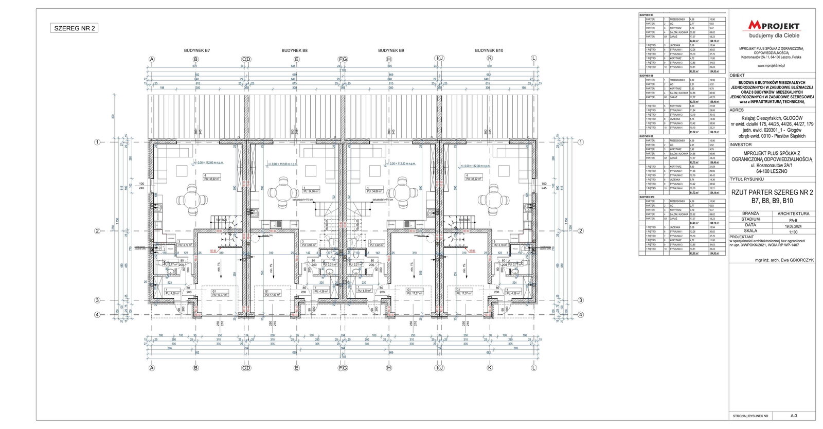
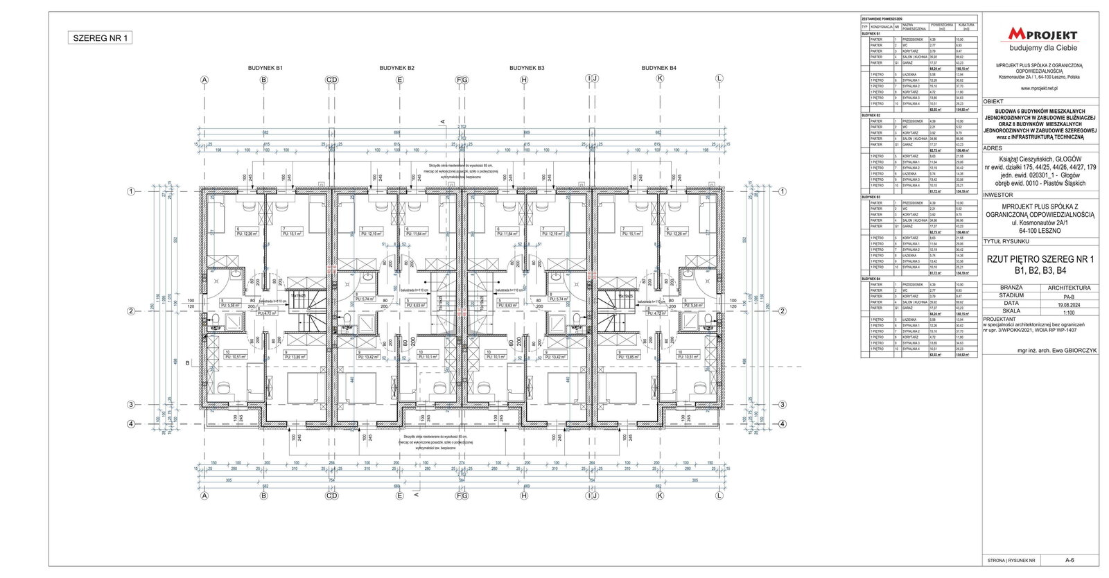
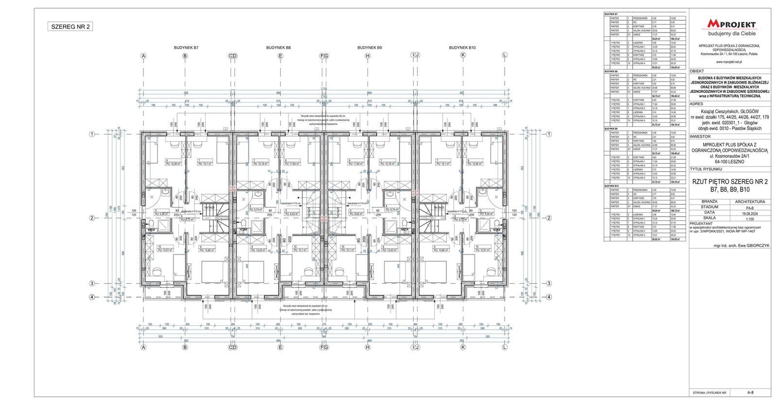
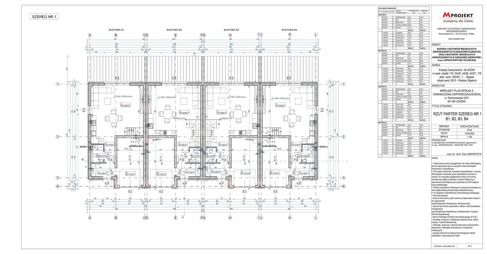
Rzut kondygnacji i mapa poglądowa
Pliki do pobrania:
- A-0 PZT G12 29.08.2024
- G12 A-6 RZUT PIĘTRO SZEREG NR 1 poprawione schody 16.10.2024 kubatura
- G12 A-1 RZUT PARTER SZEREG NR 1 poprawione schody 16.10.2024 kubatura
- G12 A-8 RZUT PIĘTRO SZEREG NR 2 poprawione schody 16.10.2024 kubatura
- G12 A-3 RZUT PARTER SZEREG NR 2 poprawione schody 16.10.2024 kubatura
Rezerwacje
| nr lokalu | nr działki | pow. użytkowa [m2] | garaż [m2] | pow. działki [m2] | cena [brutto] | STATUS |
|---|---|---|---|---|---|---|
| B1 | 175 | 126,26 | 17,37 | 347 | sprzedany | |
| B2 | 175 | 124,47 | 17,37 | 180 | sprzedany | |
| B3 | 175 | 124,47 | 17,37 | 180 | sprzedany | |
| B4 | 175 | 126,26 | 17,37 | 305 | sprzedany | |
| B5 | 44/25 | 126,06 | - | 292 | sprzedany | |
| B6 | 44/25 | 126,03 | - | 308 | sprzedany | |
| B7 | 44/26 | 126,26 | 17,37 | 292 | sprzedany | |
| B8 | 44/26 | 124,47 | 17,37 | 181 | 659 000,00 | dostępny |
| B9 | 44/26 | 124,47 | 17,37 | 181 | sprzedany | |
| B10 | 44/26 | 126,26 | 17,37 | 306 | sprzedany | |
| B11 | 44/27 | 126,26 | 17,37 | 291 | sprzedany | |
| B12 | 44/27 | 126,26 | 17,37 | 301 | sprzedany | |
| B13 | 179 | 126,05 | - | 296 | sprzedany | |
| B14 | 179 | 126,06 | - | 450 | sprzedany |
Standard wykończenia budynków
- Ściany budynku z pustaków ceramicznych gr 24 cm (ściana łącząca budynki podwójna z dylatacją)
- Ściany otynkowane, szpachlowane, jednokrotnie malowane, sufity szpachlowane jednokrotnie malowane, ściany w łazienkach bez szpachlowania
- Posadzki betonowe zacieranie mechanicznie
- Stropy żelbetowe typu filigran
- Przyłącze energetyczne
- Instalacja elektryczna podtynkowa wraz z rozdzielnią elektryczną
- Zamontowane gniazdka i włączniki elektryczne bez lamp oświetleniowych
- Instalacja C.O. ogrzewanie podłogowe bez grzejników, piec + zasobnik + fotowoltaika wspomagająca grzanie cieplej wody użytkowej
- Przyłącze wodno-kanalizacyjne
- Instalacja wod-kan podtynkowa bez urządzeń sanitarnych
- Przyłącze gazowe wraz instalacją wewnętrzną gazową do pieca
- Elewacja zewnętrzna wraz z tarasem, wejściem oraz podjazdem do budynku z kostki brukowej (typu bruk rawicki czarny)
- Stolarka okienna wraz z roletami – okna ścienne 3 szybowe, zgodne z najnowszą normą w zakresie izolacyjności cieplnej, rolety okienne z napędem elektrycznym
- Drzwi wejściowe wzmacniane z dwoma wkładkami
- Dach płaski żelbetowy z izolacją styropianem 20 – 35 cm, papa
- Ocieplenie budynku – styropian grafitowy 15 cm
- Ogrodzenie tylnej części działki płotem panelowym
- Brama garażowa z napędem na pilota
- Schody betonowe
- Balkon żelbetowy prefabrykowany, balustrada szklana
- Brak montażu: stolarki drzwiowej wewnętrznej, wykończenia ścian i podłóg (płytki, panele itp.) lamp oświetleniowych, urządzeń sanitarnych (umywalki, wc, baterie itp.)




